National Institutes of Health

Bethesda, MD

Client

National Institutes of Health

Team

TKLP
Architecture

Michael Ytterberg
Lead Designer

Details

Size: 100,000 SF
Cost: NA
Completion: 1992

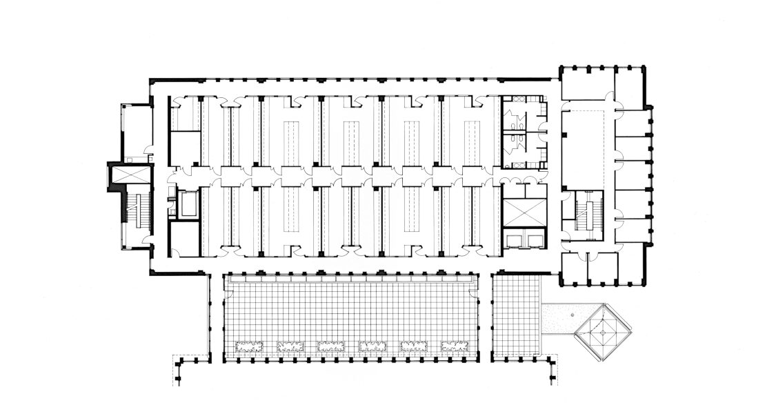
This drug testing laboratory on the campus of the National Institutes of Health was an addition to a three story 1960’s laboratory building. The laboratories, all with natural light, are in the body of the building while the offices are in the “head” at the northern end. Animal holding rooms are in the basement. The new entry lobby serves both the existing and new buildings. The material palette of red brick, buff precast concrete, and dark glass conforms to that of the adjacent buildings, while the repetition of narrow brick piers in the new building recalls the existing building. The new building completes a courtyard on the other side of which is another new laboratory building designed by a colleague.